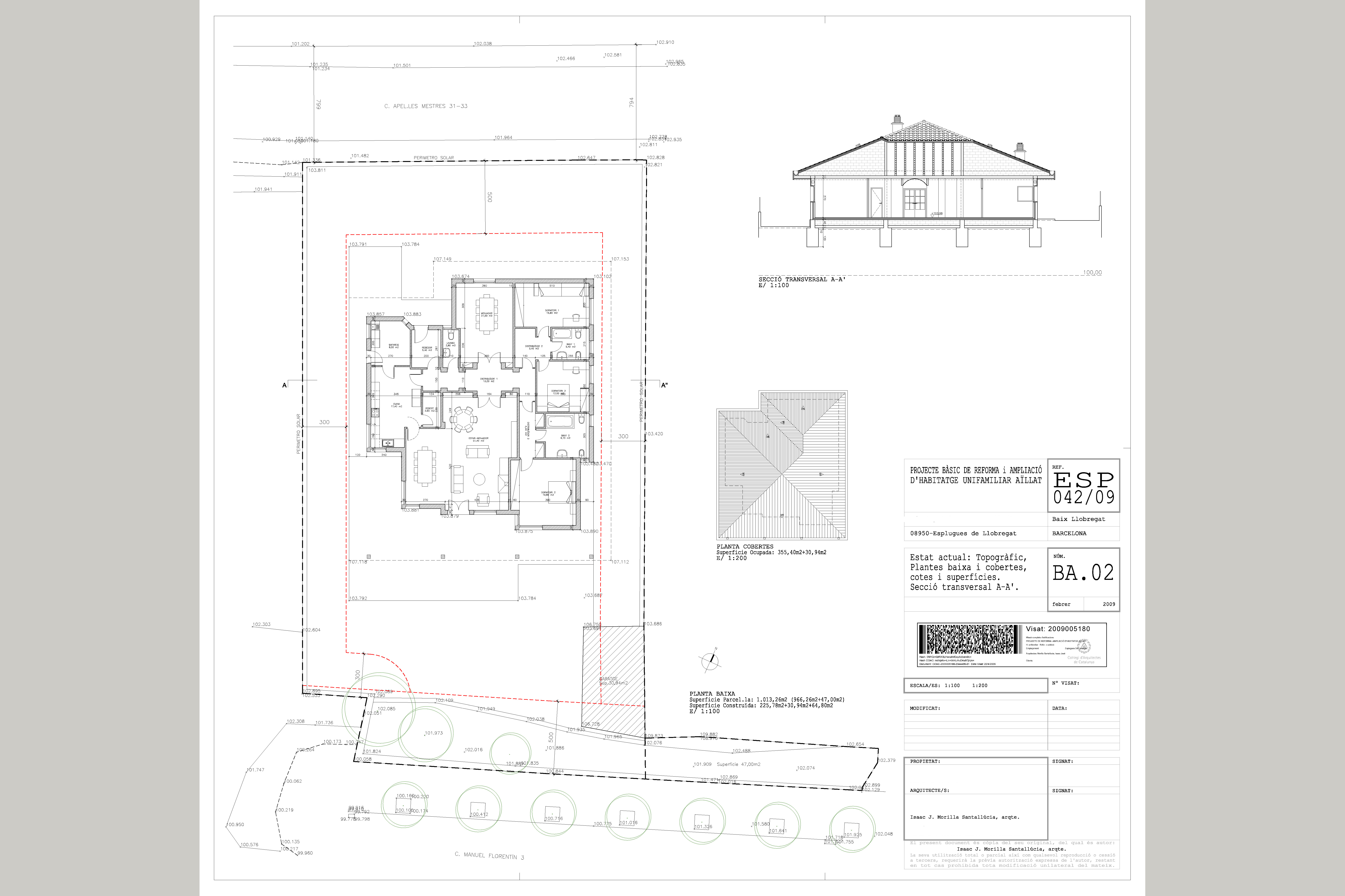
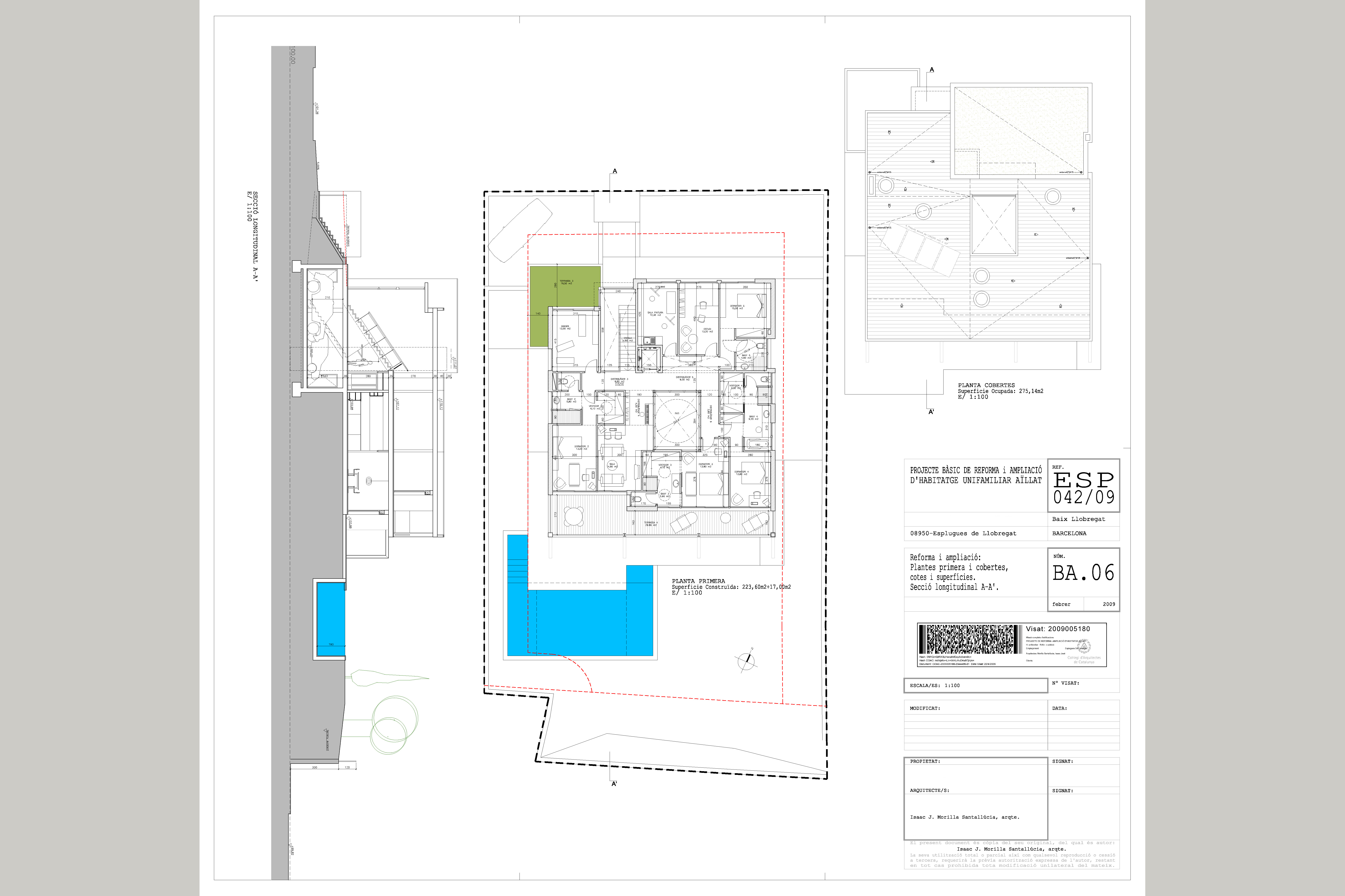
Proyecto de reforma y ampliación de una vivienda unifamiliar en Esplugues de Llobregat, ubicada en un solar de unos 1000 m2 y una construcción existente de 250 m2, se proyectó una remonta de otros 250 m2 así como un sótano para aparcamiento de 3 coches, ascensor, 6 dormitorios en suite, sala de estar con diversos ambientes, una gran cocina y diversas salas de ocio para la familia, todo ello situado alrededor de un patio central que ventilaba y daba luz a gran parte de las estancias de la casa.
Para el aspecto exterior se plantearon soluciones modernas, con una estética que evocaba los años 60, combinando diferentes materiales, tales como hormigón, piedra, vidrio y acero así como toda la urbanización exterior de la parcela.
Cliente: ParticularFecha: Mayo 2008Lugar: Esplugues de LlobregatServicios: Proyecto de reforma y ampliación