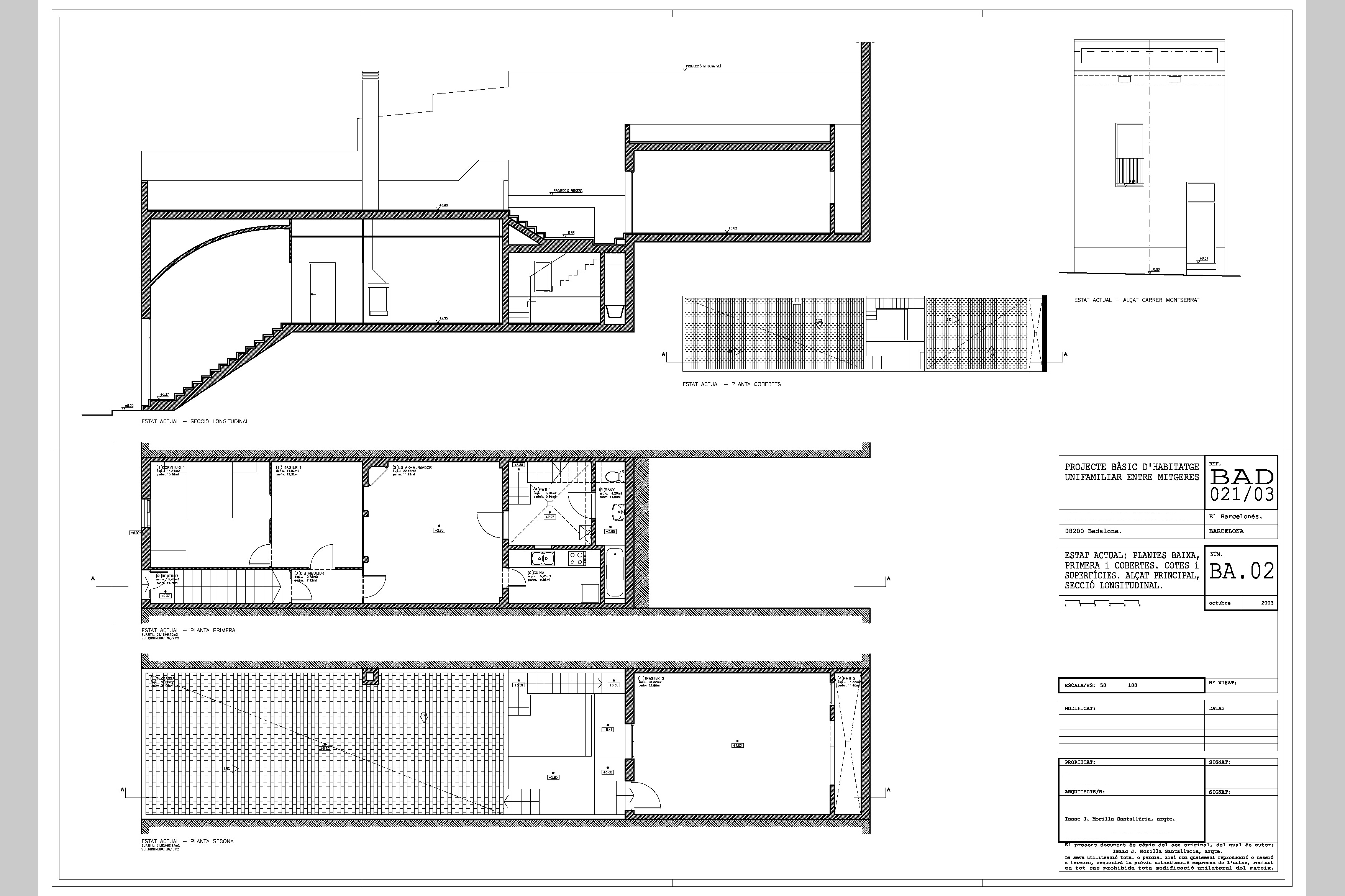
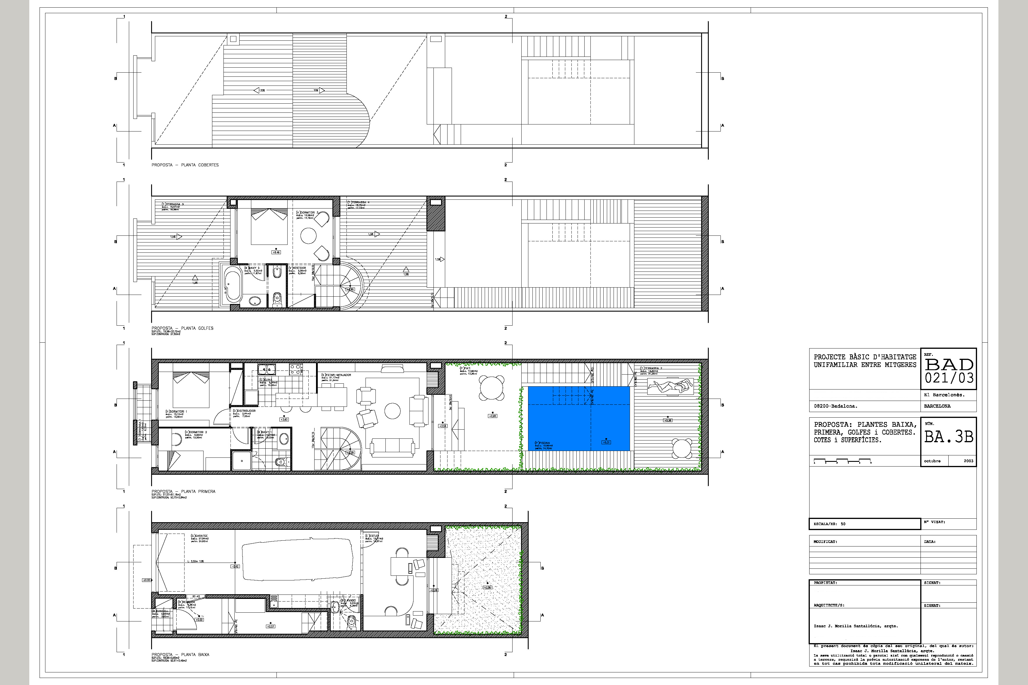
Proyecto de vivienda unifamiliar entre medianeras situado en Badalona, en el cual se derribaba por completo el edificio existente y se proyectaba una casa unifamiliar de planta baja y 2 plantas piso con 155 m2 construidos. El programa funcional constaba de garaje y trastero, 3 dormitorios dobles, salon comedor, cocina, y diversas terrazas. La fachada principal se componía a base de revoco y pintura, y un gran cuerpo central de hormigón prefabricado, así como un zócalo de aplacado de piedra en la planta baja; los elementos de carpintería se proyectaron en acero lacado.
Cliente: ParticularFecha: Septiembre 2003Lugar: BadalonaServicios: Proyecto de vivienda unifamiliar